Skip to main content

Loft Clot


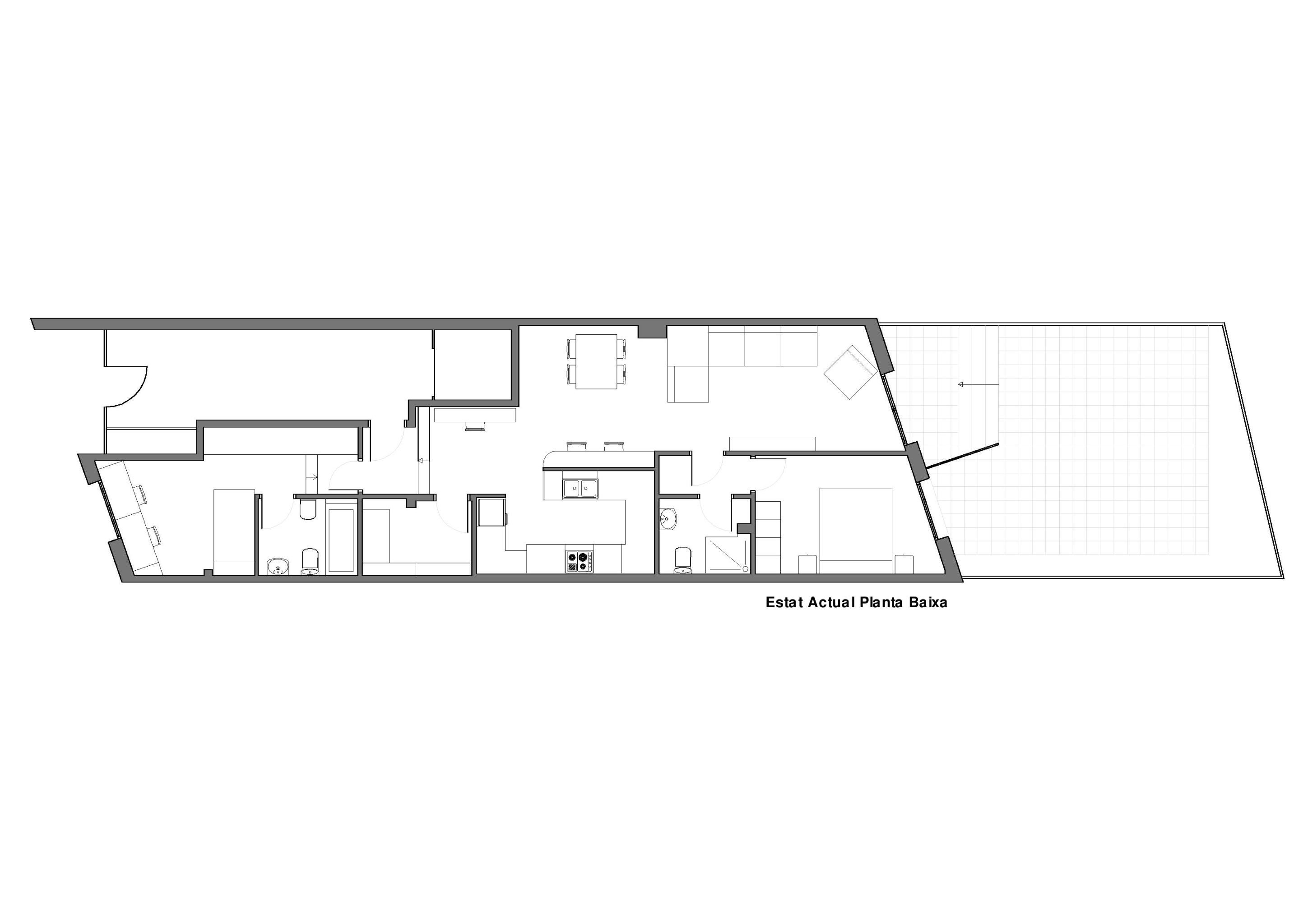
Intervenció en una planta baixa d’un pis situat al barri del Clot de Barcelona de 80 m2 i 45 m2 de terrassa exterior. Es proposa guanyar uns 25 m2 en forma d’altell i situar la terrassa exterior a nivell amb la sala d’estar buscant una millor connexió entre els espais interior i exterior. Enderroc total del pis menys la cuina es genera una gran obertura dividida en 4 fulles correderes. Els dos espais nous es destinen com a zona de dormitori cosa que provoca una nova zona de dia format per la sala d’estar-menjador-cuina de més de 50 m2
Projecte: Ferran Mora Vilamanyà
Execució d'obra: ARQUADRAT 90 S.L.
Client: Particular
Mercè Ghost

Podem fer realitat les teves idees